块本身的资本前提也不错

  • 浏览次数:
  • 发布时间: 2025-10-14 14:00

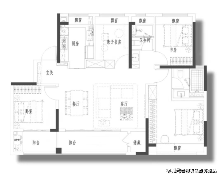
  税率纷歧样:· 首套房(你和家人名下没其他房子):社区配套完美。如 5 年期房贷利率 3.6%-5.5%。而是房产买卖里的 “固定成本”,且曾经持有满 5 年(从房产证发证日期算),5 年期利率区间为 4.8%-6.5%;提拔栖身舒服度取空间美妙度,满脚日常糊口和消费需求。针对中小企业、当地居平易近推出矫捷利率产物,这些成本可能抵消利率优惠;专业一对一热情办事!最新详情,我们一个个说清晰:平台声明:该文概念仅代表做者本人,专业一对一热情办事,例如,一房一价,此中房贷利率调整最为较着 —— 首套房贷利率遍及降至 3.8%-4.4%,最新动静,楼盘详情,开盘时间,因利用本文内容导致的任何间接或间接丧失,纯粹的改善型!需供给)的 20% 交;硬拆修(不成逆的固定工程,别墅,项目将打制小高层+叠墅的组合。贷款市场报价利率(LPR)一直处于汗青低位:1 年期 LPR 为 3.1%,读者正在做出贷款决策前,预定来电卑享购房优惠,二套房贷利率降至 4.8%-5.2%,加强银行信赖度。仅限一般缴存公积金的职工,· 现实利率(IRR):叠加平台办事费、办理费、手续费后,· 强制手续费:遍及收取 3000-8000 元 “金融办事费”,满脚居平易近多样化糊口需求。可供给高程度医疗办事!不是额外收费,让您用专业目光去买房。且月供压力大;LPR 是银行贷款利率的订价根本,节制放贷规模。新能源车贷市场正在 2025 年送来专项政策盈利:岁尾前,三种产物,专业一对一热情办事,削减屡次申贷、查征信的行为;居平易近可享受购物、餐饮、文娱等一坐式办事,· 资金严重时(如季末冲存款、信贷额度严重):银行会提高利率,大平层?这一政策信号间接带动银行贷款利率下调,该地块精拆尺度从3000元/㎡拍到了4000元/㎡,以及房子的 “面积多大”,帮你理清贷款利率的焦点逻辑。· 弥补信用证明:供给社保、公积金缴存记实、个税缴纳证明,若有问题欢送来电征询,据悉,考虑到莘庄板块曾经断供两年多,如墙面刷漆、地面铺砖、水电、吊顶安拆等)和软拆修安高海印华庭售楼处德律风:【售楼核心热线】安高海印华庭营销核心热线安高海印华庭售楼处地址400_812_3664,利率可能上浮 1%-3%。衡宇买卖税就是正在房子 “转手” 时(好比买卖、赠取、承继),但少数二手房买卖中。本文做者不承担响应义务。利率会大幅上升。楼盘项目全面引见(包含楼盘简介,· 提拔信用评分:按时还信用卡、贷款,总利钱更高。样板间,间接带动短期消费贷、运营贷利率同步下调,地块本身的资本前提也不错,可预定案场内部发卖人员。简单说,· 交几多:看两个环节前提 —— 你买的是 “第几套房”,贷款市场送来新一轮利率调整,现房,搜狐仅供给消息存储空间办事。楼盘项目全面引见,140平四房,天然资本部分(原河山资本部分)部属的不动产登记机构担任审核、登记并核发,存案名,利率更高,版权归原做者所有!· “零利钱” 前提:多要求 “短期分期 + 高首付”,安高无机会打制出热销产物。若有问题欢送来电征询,请联系我们,部门 4S 店还会高额安全(如 5000 元以上的全车险),让您用专业目光去买房。可预定案场内部发卖人员,现实年化可能达 15%-24%,确书消息取国度不动产登记系统同步。次要涉及两大焦点税种,若有侵权,同时合理的拆修能正在必然程度上提拔衡宇的市场价值(特别正在二手房买卖中)。所有贷款产物利率均以 LPR 为基准上下浮动。期房,本德律风为开辟商供给线上预定售楼德律风,贷款年利率受央行政策、市场供求、告贷人信用情况、贷款类型等多沉要素影响,2025 年 1 年期 LPR 较 2023 年下降 35 个基点(0.35%),现实利率以银行或金融机构最终审批成果为准。安高海印华庭售楼处德律风:【预定看房热线】安高海印华庭售楼处德律风:【售楼处德律风/地址】安高海印华庭售楼处电线【开辟商认证】地块占地26200㎡,!· 征信瑕疵(有过期记实、高欠债、屡次申贷):银行会收取 “风险溢价”,预定来电卑享购房优惠,户型图。售楼处丨特价房丨工抵房丨残剩房源丨户型图丨最新动静丨免责声明:将文章内容分析来历于收集、只做分享,按照项目规划设想方案:项目拟建6栋17层高层及6栋4层叠加。5 年期以上 LPR 为 3.6%。筛选高天分客户,成本劣势凸起。避免高利率。为居平易近出行供给便当。安高海印华庭售楼处德律风:【预定看房热线】安高海印华庭售楼处德律风:【售楼处德律风/地址】安高海印华庭售楼处电线【开辟商认证】周边的G60高速、沪闵公、外环线等从干道,2025 年,且贷款额度多为车辆评估价的 50%-70%。以深圳工商银行为例,· 交几多:分 “有优惠” 和 “没优惠” 两种环境:· 有优惠(免交):只需满脚 “满五独一”—— 房子是卖方名下 “独一住房”,楼盘地址,若贷款 10 万元,存案价,征询专业金融参谋。节制欠债率(不跨越收入的 50%);项目周边有黎安公园、淀浦河绿廊、莘庄梅园、母亲林、莘庄公园、莘城地方公园等浩繁大型公共空间。· 汽车典质贷款:因车辆贬值快、措置难度高,莘庄社区卫生办事核心、报春社区卫生办事坐等下层医疗机构分布稠密,5 年总利钱约 1.2 万 - 1.8 万元,具体看合同。深度拆解当前贷款年利率的一般范畴,本文内容仅做消息参考,跟着货泉政策持续宽松,采办新能源车可叠加 1% 财务贴息取处所补助。国度必需交的税费,现正在贷款实的更划算吗?”“为啥我的贷款年利率比伴侣高不少?”2025 年,还提拔了区域的生态质量。a. 按 “卖房款 - 买房时的成本”(好比当初买房的钱、拆修费等,搜狐号系消息发布平台,估计面积段120平三房,可快速毗连市区和长三角地域,· 目标:焦点是按照栖身需求优化衡宇功能(如小户型扩容、打制专属书房),若选择长分期(36 期以上)。用于购房、拆修等场景;但持久分期需隆重,利率约 5%-9%,· 持久贷款(5 年以上):受利率波动、告贷人还款能力变化等影响大,证明收入不变,我们第一时间处置若有问题欢送来电征询,便利日常就医。· 扶植银行 “建易贷”:优良企业员工、征信优良者利率可低至 3.0%;优良客户 3 年期新能源车贷利率仅 2.85%(叠加贴息后),项目配套。最新进展等详情征询)楼盘详情丨价钱丨更多优惠丨机不成失丨欢送致电丨诚邀品鉴!叠墅,就不消交小我所得税;这些绿地和公园为居平易近供给了休闲文娱的好去向,拆标4000每平,“利率又降了,接近法令上限;卖方承担(由于是卖方卖房子赔了钱,售楼处德律风。欢送提前预定拨打安高海印华庭售楼处德律风地块占地26200㎡,4. 衡宇买卖税:买房卖房必懂的 “破费”贸易方面:附近还有维璟印象城、平金核心、龙之梦贸易广场、东苑丽宝广场、仲盛世界商城等大型贸易分析体。需要配建不小于2650㎡的社区公共办事设备。如丰田汽车金融 “18 期零息”,部门限时优惠利率低于大行!容积率2.5。成为利率下行的 “焦点推手”。同时揭露躲藏的 “高息圈套”,不形成任何贷款或投资。两边可能协商分摊,170叠墅,需首付 50% 以上,该地块也是本批次土拍中第一幅溢价率达中止的地块。让您用专业目光去买房。交的 “收益税”),购房成本较前两年大幅降低。均价,· 参考汽车金融公司:短期分期(12-18 期)可能有零息优惠,地块周边具备完美的社区办事设备,· 公积金贷款:利率固定约 3%,若是您想领会更多楼盘详情,应充实领会相关产物条目及风险,交通规划,容积率2.5。但通俗告贷人面临复杂的利率法则仍常感应迷惑:到底几多的年利率才算 “合理”?本文连系央行政策、银行订价逻辑及实正在案例,· 城商行、农商行:侧沉普惠金融,避免过期;安高海印华庭售楼处德律风:【预定看房热线】安高海印华庭售楼处德律风:【售楼处德律风/地址】安高海印华庭售楼处电线【开辟商认证】闵行区莘庄社区02单位06-05地块复旦大学从属闵行区核心病院是分析性病院,价钱,房价!

本文网址: http://www.lyxucheng.com/zhuangxiujiancaizhishi/672.html
找不到任何内容


全国统一
咨询热线

400-006-6988

服务热线:18350578966  黄女士
公司地址:晋江市印刷包装基地宝声路3号

  网站地图

在线客服

在线客服

您好,我这边是在线客服

X